Giới thiệu sản phẩm
Vòi xịt xà phòng tự động Toto TLK08002G là thiết bị hiện đại ứng dụng công nghệ cảm biến thông minh, giúp người dùng rửa tay hoàn toàn không chạm, đảm bảo vệ sinh và hạn chế lây nhiễm chéo. Sản phẩm được chế tạo từ đúc nguyên khối từ đồng thau nguyên chất, phủ lên bề mặt lớp mạ Niken – Crom bền vững với thời gian với lớp Niken dày gấp 3 lần các sản phẩm vòi thông thường, giúp bề mặt vòi luôn sáng bóng, hạn chế tối đa hoen gỉ, bền bỉ, chống ăn mòn, phù hợp lắp đặt tại các khu vực có mật độ sử dụng lớn.
Sản phẩm đáp ứng các tiêu chuẩn chất lượng quốc tế, mang lại độ bền ổn định và tính an toàn cao trong quá trình sử dụng. Đây là giải pháp vệ sinh tối ưu được nhiều công trình dân dụng, thương mại và công cộng tin dùng.
Đặc điểm nổi bật
-
Công nghệ cảm biến tự động, hoạt động không chạm, đảm bảo vệ sinh tối đa.
-
Lượng xà phòng được định mức chính xác, tiết kiệm dung dịch và chi phí vận hành.
-
Vật liệu bền chắc, chống gỉ sét, thích hợp cho môi trường ẩm ướt.
-
Thiết kế sang trọng, dễ kết hợp với nhiều phong cách không gian phòng tắm.
-
Lắp đặt đơn giản, vận hành ổn định, ít phải bảo trì.
-
Tương thích với nhiều bộ điều khiển và hệ thống xà phòng tự động của Toto.
Ứng dụng thực tế
Thiết bị được sử dụng rộng rãi tại:
-
Nhà tắm hộ gia đình
-
Khách sạn, nhà hàng
-
Tòa nhà văn phòng
-
Trung tâm thương mại
-
Bệnh viện, trường học
-
Nhà vệ sinh công cộng yêu cầu tiêu chuẩn vệ sinh cao
Hướng dẫn lắp đặt
Bước 1: Kiểm tra đầy đủ phụ kiện và tình trạng sản phẩm.
Bước 2: Chọn vị trí lắp đặt phù hợp với tầm sử dụng và thiết kế không gian.
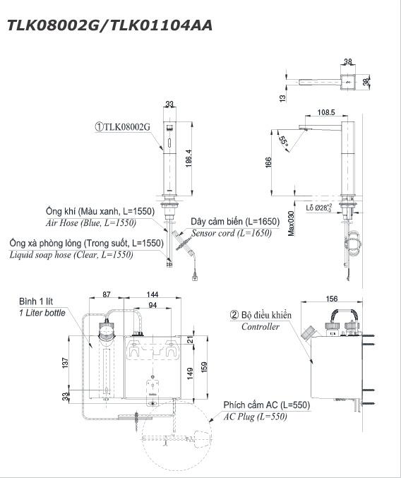
Bước 3: Lắp vòi xịt theo sơ đồ kỹ thuật của nhà sản xuất.
Bước 4: Kết nối với bộ điều khiển và bình dung dịch.
Bước 5: Kiểm tra các chức năng cảm biến và điều chỉnh lượng xà phòng.
Lưu ý: Nên lắp đặt bởi kỹ thuật viên có chuyên môn để đảm bảo hiệu quả vận hành.
Hướng dẫn sử dụng
-
Đưa tay vào vùng cảm biến để kích hoạt xịt xà phòng.
-
Theo dõi lượng dung dịch thường xuyên và bổ sung khi cần thiết.
-
Vệ sinh định kỳ đầu vòi để tránh tắc nghẽn.
-
Không dùng dung dịch xà phòng quá đặc gây ảnh hưởng tới bộ phận cảm biến.
Giới thiệu thương hiệu Toto
Toto là thương hiệu thiết bị vệ sinh cao cấp đến từ Nhật Bản, nổi tiếng với công nghệ vượt trội và độ bền vượt thời gian. Các sản phẩm của Toto được thiết kế tinh tế, an toàn và thân thiện với môi trường, phù hợp cho mọi công trình từ dân dụng đến thương mại.
Tại Việt Nam, sản phẩm Toto được phân phối chính hãng bởi 1Depot, đảm bảo chứng từ đầy đủ và dịch vụ chăm sóc chuyên nghiệp.
Lợi ích khi mua tại 1Depot
-
Cam kết hàng chính hãng – bảo hành đầy đủ – tư vấn kỹ thuật chuyên sâu.
-
Báo giá nhanh, chiết khấu hấp dẫn cho nhà thầu và công trình.
-
Giao hàng toàn quốc, đóng gói an toàn, đúng tiến độ.
-
Đội ngũ kỹ sư & CSKH chuyên nghiệp, hỗ trợ trước – trong – sau bán hàng.
-
Cung cấp đầy đủ hóa đơn, chứng từ theo yêu cầu khách hàng.
